Guggenbichler + Netzer
Architekten
GmbH
Projekte
Publikationen
Büroprofil
Kontakt
Datenschutz
Grüne Wand
Denkmalpflege
Funkturm Bildung und Kultur
Feinkosthalle Sport und Freizeit
Postfachanlage Energetische Sanierung
Bürocontainer Wohnungsbau
SWM-Umzug Wohnhäuser
Gesundheit
Industrie und Gewerbe
Wettbewerbe
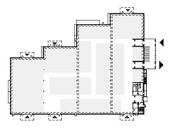
Grundriß
Bauherr:
Großmarkthalle München

vertreten durch
Baureferat H 5

Planungs- und Bauzeit:
Ende 2000 bis Anfang 2002

Baukosten:
DM 3.4 Mio.

LPH 1 - 8

< 1 2 3 4 >