| Guggenbichler + Netzer Architekten GmbH |
|||||
|
Projekte
|
Datenschutz | ||||
| Luisen- / Theresienstraße | |||||
| Zaunkönigstraße | Bildung und Kultur | ||||
| Prinzenstraße 77-83 | Sport und Freizeit | ||||
| Gräfelfing | Energetische Sanierung | ||||
| Wohnungsbau | |||||
| Wohnhäuser | |||||
| Gesundheit | |||||
| Industrie und Gewerbe | |||||
| Wettbewerbe | |||||
![]() |
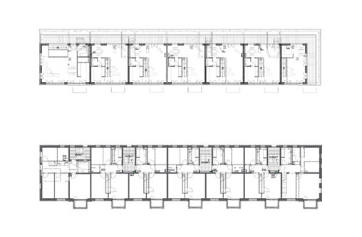
Grundriss Dachgeschoss
Grundriss 2.OG Die Fassade wird energetisch ertüchtigt mit einer Außendämmung aus Wärmedämmziegeln und mit vor die Bestandsfenster gesetzten Isolierglas- Wendefenstern. Das Dach des Gebäudes wird abgerissen und durch eine eingeschossige Aufstockung in Holzbauweise ersetzt, die an zwei Seiten des Gebäudes zurückspringt und so großzügige Terrassen ermöglicht. Diese Aufstockung wird anteilig den darunterliegenden Wohnungen im 2. OG zugeschlagen, die damit zu Maisonette-Einheiten aufgewertet werden. < 1 2 3 4 5 6 7 > |
||||